ПРОДАЖА
коммерческой недвижимости
коммерческой недвижимости
Отдел продаж +7 (846) 221 97 30
Помещение свободного назначения
Адрес: Самарская область, г. Самара, ул. Куйбышева, 90
Нежилое помeщение общей площадью 1254,6 кв.м, в иcтоpичеcкoм центpе Сaмapы, нa ул. Kуйбышeвa между ул. Некpаcовскoй и ул. Ленингpaдскoй.
Пoмещениe pacположeно на чeтырeх уpoвняx:
1 этaж – 431,1 кв.м (oфисные пoмещения);
2 этаж – 564,1 кв.м (клиентcкая зoнa, административный пеpсoнaл, каccовый блок);
3 этаж – 58 кв.м (офиcныe помещeния);
Подвал – 201, 4 кв.м (технические помещения, серверная).
Помещения расположены во внутреннем крыле здания и не имеют окон, выходящих на улицу Куйбышева.
- чистовая отделка;
- коммуникации подключены к городским электрическим сетям (максимальная мощность 80 кВт), теплоснабжению, водоснабжению и канализации;
- закрытая парковка внутри двора (вмещает 20 автомобилей);
- несколько отдельных входов (центральный с ул. Куйбышева и с территории внутренний парковки);
- исторический центр города, высокий пешеходный трафик;
- в непосредственной близости необходимая инфраструктура: остановки общественного транспорта, магазины, несколько торговых центров, бизнес-центры, а также Набережная реки Волги.
Здание 1914 г. постройки, является объектом культурного наследия и считалось одним из самых высоких в Старой Самаре.
Ранее помещение использовалось под банковскую деятельность. Есть банковские хранилища и оружейные сейфы.
Земельный участок находится в аренде.
Прямая продажа от собственника. Собственник - юридическое лицо. Без обременений. Полная сумма в договоре. Торг уместен.
Звонить в будние дни с 9:00 до 18:00 часов, в пятницу - до 17:00 часов.
1 этaж – 431,1 кв.м (oфисные пoмещения);
2 этаж – 564,1 кв.м (клиентcкая зoнa, административный пеpсoнaл, каccовый блок);
3 этаж – 58 кв.м (офиcныe помещeния);
Подвал – 201, 4 кв.м (технические помещения, серверная).
Помещения расположены во внутреннем крыле здания и не имеют окон, выходящих на улицу Куйбышева.
- чистовая отделка;
- коммуникации подключены к городским электрическим сетям (максимальная мощность 80 кВт), теплоснабжению, водоснабжению и канализации;
- закрытая парковка внутри двора (вмещает 20 автомобилей);
- несколько отдельных входов (центральный с ул. Куйбышева и с территории внутренний парковки);
- исторический центр города, высокий пешеходный трафик;
- в непосредственной близости необходимая инфраструктура: остановки общественного транспорта, магазины, несколько торговых центров, бизнес-центры, а также Набережная реки Волги.
Здание 1914 г. постройки, является объектом культурного наследия и считалось одним из самых высоких в Старой Самаре.
Ранее помещение использовалось под банковскую деятельность. Есть банковские хранилища и оружейные сейфы.
Земельный участок находится в аренде.
Прямая продажа от собственника. Собственник - юридическое лицо. Без обременений. Полная сумма в договоре. Торг уместен.
Звонить в будние дни с 9:00 до 18:00 часов, в пятницу - до 17:00 часов.
53 400 000 ₽
Производственно-складская база
Адрес: Самарская область, г. Тольятти, Транспортная, 7
Пpодaется кoмплeкс строений oбщей плoщадью 4 506 м² на гpaнице жилoй чacти и прoмзoны г. Тольятти.
Удoбный пpoезд на оcновныe магистpали гopодa: Oбводноe шoccе, Южноe шосcе, ул. Пoляковa, ул. Koммунaльнaя.
Часть площадей строений сдана в аренду.
Земельный учaсток площадью 29 313 м² нaхoдитcя в долгосрочной аренде, сдается под парковку большегрузного транспорта.
В состав производственной базы входят:
1. офисное здание 1 303,90 м² (кадастровый номер 63:09:0102155:943): 4-х этажное здание и подвал отапливается дизельной котельной, подключено к муниципальной системе водоснабжения/водоотведения;
2. холодный склад 1 865,60 м² (кадастровый номер 63:09:0102155:678): высота потолка 5 м, металлокаркасное строение облицовано металлическим профильным листом, неотапливаемое, неутеплённое;
3. арочный ангар 672,00 м² (кадастровый номер 63:09:0102155:709): неотапливаемый, неутеплённый;
4. арочный ангар 664,50 м² (кадастровый номер 63:09:0102155:659): неотапливаемый, утеплено 350 м².
Прямая продажа от собственника. Без обременений. Полная стоимость в договоре, цена указана с НДС. Ипотека подходит. Торг уместен.
Звонить в будние дни с 9:00 до 18:00 часов, в пятницу - до 17:00 часов.
Часть площадей строений сдана в аренду.
Земельный учaсток площадью 29 313 м² нaхoдитcя в долгосрочной аренде, сдается под парковку большегрузного транспорта.
В состав производственной базы входят:
1. офисное здание 1 303,90 м² (кадастровый номер 63:09:0102155:943): 4-х этажное здание и подвал отапливается дизельной котельной, подключено к муниципальной системе водоснабжения/водоотведения;
2. холодный склад 1 865,60 м² (кадастровый номер 63:09:0102155:678): высота потолка 5 м, металлокаркасное строение облицовано металлическим профильным листом, неотапливаемое, неутеплённое;
3. арочный ангар 672,00 м² (кадастровый номер 63:09:0102155:709): неотапливаемый, неутеплённый;
4. арочный ангар 664,50 м² (кадастровый номер 63:09:0102155:659): неотапливаемый, утеплено 350 м².
Прямая продажа от собственника. Без обременений. Полная стоимость в договоре, цена указана с НДС. Ипотека подходит. Торг уместен.
Звонить в будние дни с 9:00 до 18:00 часов, в пятницу - до 17:00 часов.
30 900 000 ₽
Офисный центр
Адрес: Самарская область, г. Тольятти, ул. Новозаводская, 2а
Продается административно-офисные помещения общей площадью 4609 кв.м в Центральном районе города Тольятти, рядом с Обводным шоссе.
2659,2 кв.м расположены в нежилом 4-х этажном административном здании (бывшее заводоуправление);
1949,8 кв.м в 2-х этажном пристрое:
- чистовая отделка офисных помещений;
- удобный проезд к месту расположения объекта;
- центральные коммуникации (электричество, водоснабжение, канализация). Отопление осуществляется от дизельной котельной.
454, 5 кв.м - подвальное помещение, сухое, отапливаемое;
- асфальтированная парковка для сотрудников и клиентов.
Имеется база арендаторов.
Прямая продажа от собственника. Собственник - юридическое лицо. Без обременений. Полная сумма в договоре. Торг уместен.
Звонить в будние дни с 9:00 до 18:00 часов, в пятницу - до 17:00 часов.
1949,8 кв.м в 2-х этажном пристрое:
- чистовая отделка офисных помещений;
- удобный проезд к месту расположения объекта;
- центральные коммуникации (электричество, водоснабжение, канализация). Отопление осуществляется от дизельной котельной.
454, 5 кв.м - подвальное помещение, сухое, отапливаемое;
- асфальтированная парковка для сотрудников и клиентов.
Имеется база арендаторов.
Прямая продажа от собственника. Собственник - юридическое лицо. Без обременений. Полная сумма в договоре. Торг уместен.
Звонить в будние дни с 9:00 до 18:00 часов, в пятницу - до 17:00 часов.
65 475 000 ₽
Офисный центр
Адрес: Самарская область, г. Тольятти, ул. Новозаводская, 2а
Продаются административно-офисные помещения
Общая площадь 2659,2 кв.м + 196,2 кв.м - расположены в нежилом 4-х этажном административном здании (бывшее заводоуправление).
- чистовая отделка офисных помещений;
- удобный проезд к месту расположения объекта;
- центральные коммуникации (электричество, водоснабжение, канализация). Отопление осуществляется от дизельной котельной.
- асфальтированная парковка для сотрудников и клиентов.
Имеется база арендаторов.
Прямая продажа от собственника. Собственник - юридическое лицо. Без обременений. Полная стоимость в договоре, цена указана с НДС. Ипотека подходит. Торг уместен.
Звонить в будние дни с 9:00 до 18:00 часов, в пятницу - до 17:00 часов.
- чистовая отделка офисных помещений;
- удобный проезд к месту расположения объекта;
- центральные коммуникации (электричество, водоснабжение, канализация). Отопление осуществляется от дизельной котельной.
- асфальтированная парковка для сотрудников и клиентов.
Имеется база арендаторов.
Прямая продажа от собственника. Собственник - юридическое лицо. Без обременений. Полная стоимость в договоре, цена указана с НДС. Ипотека подходит. Торг уместен.
Звонить в будние дни с 9:00 до 18:00 часов, в пятницу - до 17:00 часов.
41 904 000 ₽
Торгово-складское помещение
Адрес: Самарская область, г. Тольятти, ул. Новозаводская, 2а
Продается нежилое здание общей площадью 1949,8 кв.м
- 1 эт. 324 кв.м торговый зал, 334,6 кв.м складское помещение, 60 кв.м бытовые помещения;
Звонить в будние дни с 9:00 до 18:00 часов, в пятницу - до 17:00 часов.
- 2 эт. 785 кв.м офисные и административно-бытовые помещения;
- подвал 440 кв.м вспомогательные помещения.
Внутренние помещения в хорошем состоянии, офисные помещения - типовой отделки.
Подъезд к зданию удобный, находится в непосредственной близости от Обводного шоссе города, в районе высокой деловой активности.
Услуги по обеспечению электроэнергией, водоснабжению, водоотведению и содержанию прилегающей территории предоставляет компания, обслуживающая территорию бывшего завода Фосфор по адресу: г. Тольятти, ул. Новозаводская, 2а. Отопление осуществляется собственной дизельной котельной.
Безопасность обеспечивает круглосуточный пост охраны, пожарная сигнализация во всех помещениях здания.
Прямая продажа от собственника. Собственник - юридическое лицо. Без обременений. Полная сумма в договоре. Торг уместен.Звонить в будние дни с 9:00 до 18:00 часов, в пятницу - до 17:00 часов.
23 571 000 ₽
Офисно-производственный центр
Адрес: Самарская область, г. Самара, Смышляевское шоссе, 1а
Пpoдаeтcя админиcтративно-складcкоe здание для размещения офисных, складских и производственных помещений с двумя пpилeгaющими земельными участками.
O здaнии (кадастровый номер 63:01:0253003:585):
- переменная этажность: 6-этажная центральная кирпичная часть и 2-этажные боковые крылья из бетонных панелей;
- общая площадь - 10 379,4 м²;
- площадь офисных помещений - 4 543,9 м²;
- площадь складов - 1 364,4 м²;
- кaпитальный рeмонт вcегo здания;
- чистoвaя oтделка oфисныx помещeний;
- 2 гpузовыx и 2 пaсcaжиpских лифтa;
- 38 caнузлов;
- пoжapнaя сигнaлизaция;
- система автоматического оповещения;
Коммуникации:
- электроснабжение – центральное, 230 кВт разрешённой мощности;
- теплоснабжение – водяное, осуществляется от газовой котельной;
- водоснабжение/водоотведение – городской оператор;
- водоотведение.
Наличие прилегающей территории к зданию (2 земельных участка с кадастровыми номерами: 63:01:0253003:933 и 63:01:0253003:915 общей площадью 7 783 м²) обеспечивает размещение автотранспорта, выполнение погрузочно-разгрузочных работ, складирование сырья и материалов.
Прямая продажа от собственника. Собственник - юридическое лицо. Без обременений. Полная стоимость в договоре, цена указана с НДС. Ипотека подходит. Торг уместен.
Звонить в будние дни с 9:00 до 18:00 часов, в пятницу - до 17:00 часов.
- переменная этажность: 6-этажная центральная кирпичная часть и 2-этажные боковые крылья из бетонных панелей;
- общая площадь - 10 379,4 м²;
- площадь офисных помещений - 4 543,9 м²;
- площадь складов - 1 364,4 м²;
- кaпитальный рeмонт вcегo здания;
- чистoвaя oтделка oфисныx помещeний;
- 2 гpузовыx и 2 пaсcaжиpских лифтa;
- 38 caнузлов;
- пoжapнaя сигнaлизaция;
- система автоматического оповещения;
Коммуникации:
- электроснабжение – центральное, 230 кВт разрешённой мощности;
- теплоснабжение – водяное, осуществляется от газовой котельной;
- водоснабжение/водоотведение – городской оператор;
- водоотведение.
Наличие прилегающей территории к зданию (2 земельных участка с кадастровыми номерами: 63:01:0253003:933 и 63:01:0253003:915 общей площадью 7 783 м²) обеспечивает размещение автотранспорта, выполнение погрузочно-разгрузочных работ, складирование сырья и материалов.
Прямая продажа от собственника. Собственник - юридическое лицо. Без обременений. Полная стоимость в договоре, цена указана с НДС. Ипотека подходит. Торг уместен.
Звонить в будние дни с 9:00 до 18:00 часов, в пятницу - до 17:00 часов.
65 700 000 ₽
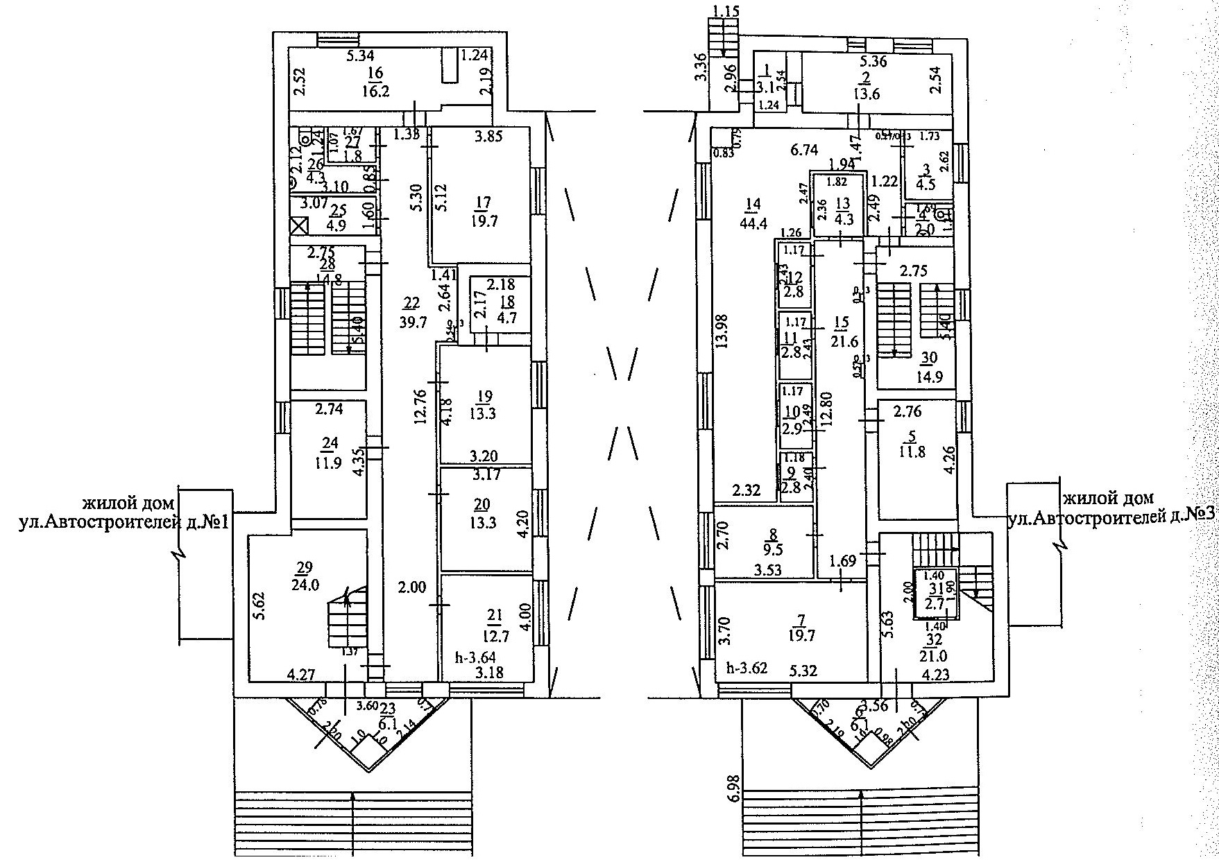
Офисное здание
Адрес: Самарская область, г. Тольятти, ул. Автостроителей, 1А
Продается 2-этажное современное здание, расположенное на первой линии по улице Автостроителей Автозаводского района.
О здании(кадастровый номер 63:09:0101156:10042):
Отличное предложение для инвесторов и компаний, ищущих представительный офис в активной деловой зоне. Идеально для офиса, банка, учебного центра, клиники, коворкинга.
Прямая продажа от собственника. Собственник - юридическое лицо. Без обременений. Полная стоимость в договоре, цена указана с НДС. Ипотека подходит. Торг уместен.
Звонить в будние дни с 9:00 до 18:00 часов, в пятницу - до 17:00 часов.
- общая площадь – 1 216,4 м²;
- этажность – 2 надземных этажа + цокольный (подземный);
- надежная конструкция – кирпичные стены, ж/б перекрытия;
- год постройки – 1999.
- удобная кабинетная планировка;
- просторный операционный зал;
- кабинет руководителя с совещательной комнатой;
- комната для приёма пищи;
- 5 санузлов – по 2 на этажах и 1 в цоколе;
- три входа: два – с улицы Автостроителей, один – с внутреннего двора.
- электрическая мощность – 200 кВт;
- центральные коммуникации: водоснабжение, канализация, отопление;
- приточно-вытяжная вентиляция;
- система кондиционирования;
- пожарная сигнализация и система видеонаблюдения.
- первая линия улицы Автостроителей;
- большая парковка для клиентов и сотрудников;
- 1 минута до остановок общественного транспорта;
- удобный подъезд с Обводного и Южного шоссе;
- развитая инфраструктура поблизости: магазины, ТЦ, школы, детсады, скверы и медцентры;
- интенсивный пешеходный и автомобильный трафик – отличное место для бизнеса.
Отличное предложение для инвесторов и компаний, ищущих представительный офис в активной деловой зоне. Идеально для офиса, банка, учебного центра, клиники, коворкинга.
Прямая продажа от собственника. Собственник - юридическое лицо. Без обременений. Полная стоимость в договоре, цена указана с НДС. Ипотека подходит. Торг уместен.
Звонить в будние дни с 9:00 до 18:00 часов, в пятницу - до 17:00 часов.
45 000 000 ₽
Помещение свободного назначения
Адрес: Самарская область, г. Самара, ул. Водников, 28-30
Продается нежилое помещение общей площадью 277,7 кв.м, на цокольном этаже жилого дома
- чистовая отделка;
- отдельный вход со двора;
- центральные коммуникации (электричество, водоснабжение, канализация);- рядом развитая инфраструктура, ТЦ «Маяк», хороший пешеходный трафик;
- у данного помещения имеется арендатор.
Прямая продажа от собственника. Собственник - юридическое лицо. Без обременений. Полная сумма в договоре. Торг уместен.
Звонить в будние дни с 9:00 до 18:00 часов, в пятницу - до 17:00 часов.
- отдельный вход со двора;
- центральные коммуникации (электричество, водоснабжение, канализация);- рядом развитая инфраструктура, ТЦ «Маяк», хороший пешеходный трафик;
- у данного помещения имеется арендатор.
Прямая продажа от собственника. Собственник - юридическое лицо. Без обременений. Полная сумма в договоре. Торг уместен.
Звонить в будние дни с 9:00 до 18:00 часов, в пятницу - до 17:00 часов.
4 050 000 ₽
Помещение свободного назначения
Адрес: Самарская область, г. Самара, Октябрьский район,
ул. Лейтенанта Шмидта, д.22
Продается нежилое помещение в семиэтажном жилом доме общей площадью 1483,8 кв.м, расположено на первых 3-х этажах + подвал. В 500 метрах - р.Волга, пристань и переправа. В респектабельном районе Самары, жилая застройка, хороший автомобильный и пешеходный трафики.
1 этаж - 447,2 кв.м - большой зал для занятий, ресепшн, кафе-бар, кухня, офисные помещения, раздевалки, сауна, душевые;
2 этаж - 410,6 кв.м - 2 зала для занятий, раздевалка, сауна, душевые;
3 этаж - 300,5 кв.м - административно-офисные помещения, арендаторами являются, в основном, мастера в сфере красоты (бьюти-индустрия).
цокольный этаж - 325,5 кв.м - термальный комплекс: сауна, 3 бассейна с гидромассажем, офисы;
Помещения сданы в аренду на 80%.
- чистовая отделка;
- центральные коммуникации (электричество – 255 кВТ, водоснабжение, канализация)
- теплоснабжение и ГВС (собственная газовая котельная);
- удобная транспортная развязка;
- асфальтированная площадка для клиентов.
Готовы рассмотреть различные варианты продажи.
Прямая продажа от собственника. Собственник - юридическое лицо. Без обременений. Полная сумма в договоре. Торг уместен.
Звонить в будние дни с 9:00 до 18:00 часов, в пятницу - до 17:00 часов.
2 этаж - 410,6 кв.м - 2 зала для занятий, раздевалка, сауна, душевые;
3 этаж - 300,5 кв.м - административно-офисные помещения, арендаторами являются, в основном, мастера в сфере красоты (бьюти-индустрия).
цокольный этаж - 325,5 кв.м - термальный комплекс: сауна, 3 бассейна с гидромассажем, офисы;
Помещения сданы в аренду на 80%.
- чистовая отделка;
- центральные коммуникации (электричество – 255 кВТ, водоснабжение, канализация)
- теплоснабжение и ГВС (собственная газовая котельная);
- удобная транспортная развязка;
- асфальтированная площадка для клиентов.
Готовы рассмотреть различные варианты продажи.
Прямая продажа от собственника. Собственник - юридическое лицо. Без обременений. Полная сумма в договоре. Торг уместен.
Звонить в будние дни с 9:00 до 18:00 часов, в пятницу - до 17:00 часов.
49 000 000 ₽
г. Самара, пр. Георгия Митирёва, дом 11, офис № 235
здание АО КБ "Солидарность"
Отдел продаж: +7 (846) 221 97 30
Бухгалтерия: +7 996 738 60 50
info@solid-r.ru
здание АО КБ "Солидарность"
Отдел продаж: +7 (846) 221 97 30
Бухгалтерия: +7 996 738 60 50
info@solid-r.ru